Nhà 2 tầng mái Nhật tân cổ điển 4 phòng ngủ đang trở thành lựa chọn lý tưởng của nhiều gia đình Việt nhờ sự kết hợp hài hòa giữa vẻ đẹp sang trọng, tinh tế và công năng sử dụng tiện nghi. Kiến trúc tân cổ điển mang đến nét thanh lịch, bền vững theo thời gian, trong khi hệ mái Nhật giúp tổng thể ngôi nhà trở nên cao ráo, thoáng mát và phù hợp với điều kiện khí hậu nước ta. Với quy mô 4 phòng ngủ khoa học, mẫu nhà này đáp ứng trọn vẹn nhu cầu sinh hoạt của gia đình nhiều thế hệ, đồng thời thể hiện gu thẩm mỹ và đẳng cấp của gia chủ.
Thông tin nhà 2 tầng mái Nhật tân cổ điển
| Chủ đầu tư: Chú Dương Văn Vân | Địa chỉ: Cẩm Giàng, Hải Phòng |
| Mặt tiền: 8,3m | Kích thước xây dựng: 8,3 x 14,8m |
| Số tầng: 2 | Loại hình: Nhà mái Nhật hiện đại |
| Tổng diện tích: 242m2 | |
Công năng:
| |
| Đơn vị thiết kế: CÔNG TY TNHH MAXHOME ARCHITECT & DESIGN | |
Ngoại thất nhà 2 tầng mái Nhật tân cổ điển sang trọng
Không gian sống mang phong cách tân cổ điển sang trọng, quý phái đang ngày càng được nhiều gia chủ ưa chuộng. Lối thiết kế này nổi bật với bảng màu trang nhã kết hợp cùng các đường phào chỉ tinh tế, cân đối, tạo nên vẻ đẹp thanh lịch và đậm chất nghệ thuật. Những chi tiết kiến trúc được trau chuốt khéo léo không chỉ làm tăng giá trị thẩm mỹ cho ngôi nhà mà còn gợi liên tưởng đến các dinh thự châu Âu cổ kính, đẳng cấp, khẳng định gu thẩm mỹ tinh tế và vị thế của gia chủ theo thời gian.

Mẫu nhà 2 tầng mái Nhật phong cách tân cổ điển gây ấn tượng với gam màu xám xi măng chủ đạo, mang đến cảm giác trang nhã, hiện đại nhưng vẫn giữ được nét sang trọng đặc trưng. Hệ phào chỉ được thiết kế tinh tế, chạy xuyên suốt quanh thân cột và các mảng tường, tạo điểm nhấn kiến trúc rõ ràng mà không gây rối mắt. Đặc biệt, việc sử dụng cột tròn mềm mại giúp tổng thể công trình trở nên thanh thoát, cân đối, đồng thời tôn lên vẻ đẹp bề thế, chuẩn mực của phong cách tân cổ điển, góp phần nâng cao giá trị thẩm mỹ và đẳng cấp cho ngôi nhà.

Điểm nhấn nổi bật của công trình nhà 2 tầng mái Nhật phong cách tân cổ điển nằm ở hệ cửa sổ vòm bán nguyệt mềm mại, mang đậm dấu ấn kiến trúc châu Âu cổ điển. Thiết kế này không chỉ tạo hiệu ứng thẩm mỹ cuốn hút mà còn giúp đón ánh sáng tự nhiên hiệu quả, mang lại không gian sống thông thoáng, dễ chịu. Bên cạnh đó, lan can ban công sử dụng sắt mỹ thuật sơn tĩnh điện với các hoa văn tinh xảo được gia công tỉ mỉ, vừa đảm bảo độ bền, khả năng chống oxy hóa, vừa góp phần tôn lên vẻ sang trọng, đẳng cấp và giá trị bền vững cho toàn bộ công trình.

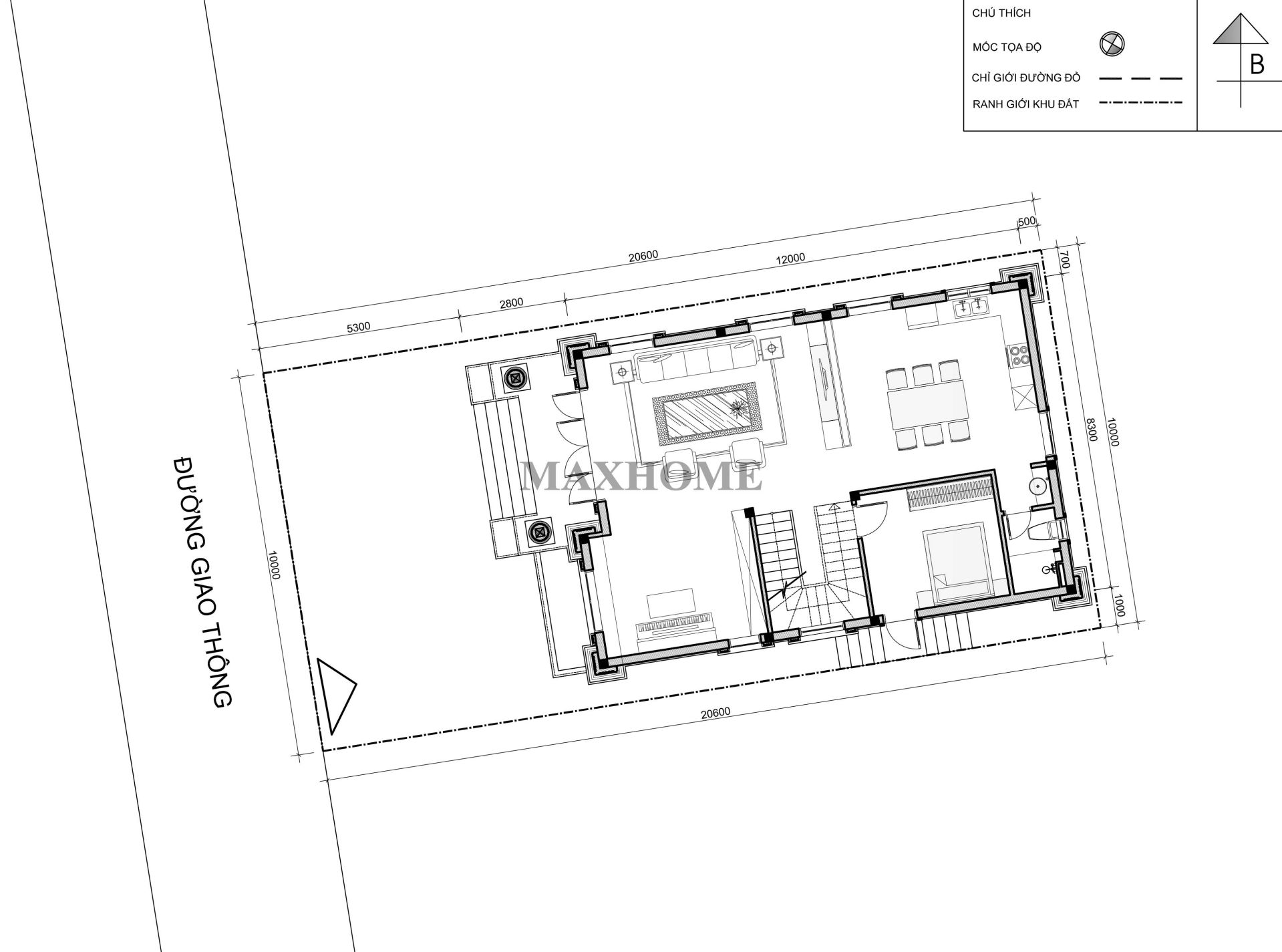
Quan sát từ góc nhìn trên cao, có thể thấy rõ ngôi nhà 2 tầng mái Nhật phong cách tân cổ điển được bố trí một khoảng sân phía trước với diện tích vừa phải, tạo lối tiếp cận thông thoáng từ cổng vào sảnh chính. Khu vực sân không chỉ đóng vai trò đệm cảnh quan, giúp công trình trở nên bề thế và cân đối hơn, mà còn được thiết kế đủ rộng để đỗ ô tô, đáp ứng nhu cầu sinh hoạt tiện lợi cho gia đình. Cách tổ chức không gian khoa học này góp phần nâng cao tính thẩm mỹ tổng thể, đồng thời đảm bảo sự thuận tiện và an toàn trong quá trình sử dụng hàng ngày.

Các kiến trúc sư đã tính toán kỹ lưỡng khi lựa chọn hệ mái Nhật cho công trình với độ dốc vừa phải, thiết kế đua đều về các phía và sử dụng gam xanh than thanh lịch, góp phần làm nổi bật vẻ đẹp sang trọng, hài hòa của tổng thể kiến trúc. Trong điều kiện khí hậu nóng ẩm, mưa nhiều tại Việt Nam, mái Nhật được đánh giá là giải pháp tối ưu nhờ khả năng thoát nước nhanh, hạn chế tình trạng thấm dột và chống nóng hiệu quả.
Thông thường, mái Nhật được tạo hình theo dạng chữ A, kết hợp hệ vì kèo và lớp cách nhiệt bên trong, hình thành lớp đệm không khí giúp giảm hấp thụ nhiệt từ bên ngoài. Nhờ đó, không gian bên trong ngôi nhà luôn giữ được sự mát mẻ, thông thoáng, đồng thời nâng cao độ bền cho công trình và mang lại giá trị sử dụng lâu dài, phù hợp với điều kiện địa lý và thói quen sinh hoạt của gia đình Việt.

Khám phá công năng của mẫu nhà 2 tầng mái Nhật 4 phòng ngủ
Công trình nhà 2 tầng mái Nhật phong cách tân cổ điển được xây dựng ở vị trí gần mặt đường giao thông phía trước, thuận tiện cho việc di chuyển và kết nối sinh hoạt hàng ngày. Ngôi nhà có kích thước xây dựng 8,3 x 14,8m, được quy hoạch hợp lý để tối ưu diện tích sử dụng cũng như đảm bảo sự thông thoáng cho không gian bên trong. Với quy mô 2 tầng, tổng diện tích sử dụng ước tính khoảng 242m², đáp ứng đầy đủ nhu cầu sinh hoạt của gia đình đông thành viên, đồng thời vẫn giữ được sự cân đối về hình khối, công năng và tính thẩm mỹ theo đúng tinh thần kiến trúc tân cổ điển.

Bước từ sảnh chính vào bên trong là không gian phòng khách rộng rãi, được bố trí tại vị trí trung tâm, thuận tiện cho việc tiếp đón khách và sinh hoạt chung của gia đình. Đối diện phòng khách là khu vực đặt đàn piano, vừa tạo điểm nhấn thẩm mỹ tinh tế, vừa đáp ứng nhu cầu thư giãn, giải trí và nuôi dưỡng đời sống tinh thần cho các thành viên. Di chuyển về cuối nhà là khu vực bếp và phòng ăn được sắp xếp gọn gàng, đảm bảo sự liên kết mạch lạc với không gian sinh hoạt chung. Bên cạnh đó, phòng ngủ số 01 được bố trí đối diện khu bếp ăn, thuận tiện cho người lớn tuổi sử dụng, và nhà vệ sinh chung được đặt liền kề, tối ưu công năng và sự tiện lợi trong quá trình sinh hoạt hằng ngày.

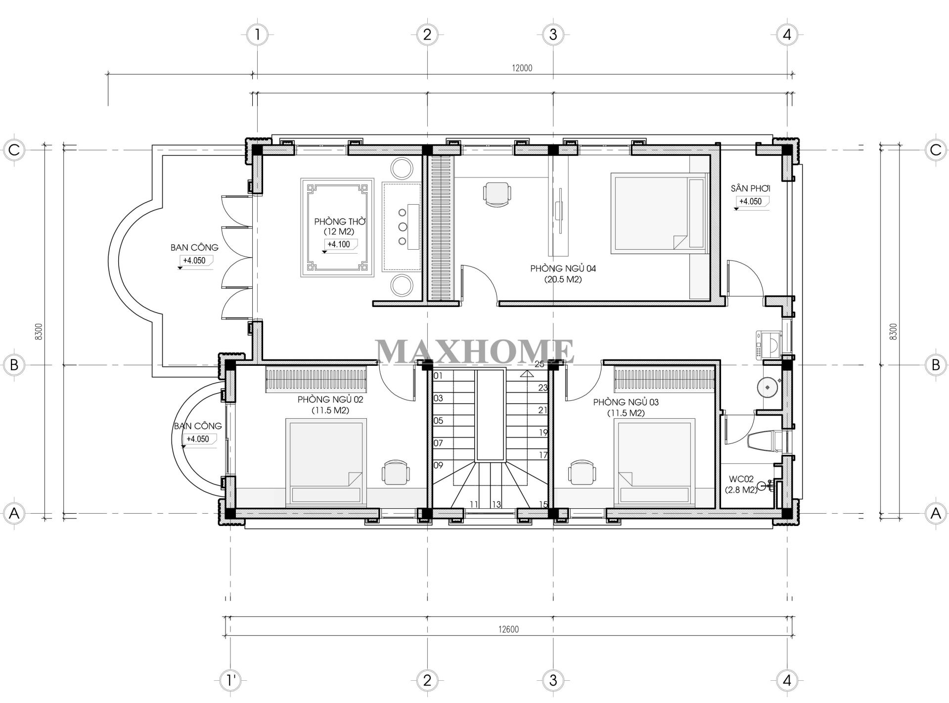
Không gian tầng 2 được bố trí khoa học, đảm bảo sự riêng tư và yên tĩnh cho các thành viên trong gia đình. Phòng thờ được thiết kế trang nghiêm, đặt ở vị trí đẹp và hướng ra ban công, giúp không gian luôn thông thoáng, đón ánh sáng và gió tự nhiên, đồng thời phù hợp với yếu tố phong thủy. Bao quanh khu vực này là 3 phòng ngủ có diện tích hợp lý, đáp ứng nhu cầu nghỉ ngơi thoải mái cho các thành viên. Nhà vệ sinh chung được bố trí gọn gàng ở cuối nhà, đối diện là khu vực sân phơi thông thoáng, thuận tiện cho sinh hoạt hàng ngày và góp phần tối ưu công năng sử dụng cho toàn bộ tầng.







