Chỉ cần lướt mắt qua con đường quen thuộc trên đoạn đường Long An là đã thấy ngay một ngôi nhà xinh xắn khiến người ta phải ngoái nhìn. Đó là mẫu nhà cấp 4 mái Nhật tân cổ điển của anh Tâm do Maxhome thiết kế, ngôi nhà mang đến cảm giác vừa ấm cúng vừa sang trọng, đúng kiểu nhìn là thấy muốn về ở liền khiến ai đi ngang qua cũng yêu thích ngắm nhìn.
Thông tin nhà cấp 4 mái Nhật tân cổ điển ở Long An
| Chủ đầu tư: Anh Trương Ngọc Tâm | Địa chỉ: Thủ Thừa, Long An |
| Mặt tiền: 9,3m | Kích thước xây dựng: 9,3 x 21,4m |
| Số tầng: 1 tầng | Loại hình: Nhà mái Nhật tân cổ điển |
| Tổng diện tích: 162m2 | |
| Công năng:
Phòng khách, phòng thờ, phòng bếp, 3 phòng ngủ, 2 wc, 1 phòng tắm, phòng giặt |
|
| Đơn vị thiết kế: CÔNG TY TNHH MAXHOME ARCHITECT & DESIGN | |
Khám phá quang cảnh căn nhà cấp 4 đẹp
Ngôi nhà cấp 4 mái Nhật mang dáng dấp tân cổ điển quen thuộc nhưng được tiết chế vừa đủ để phù hợp với quy mô nhà cấp 4. Hệ mái Nhật tạo cảm giác bề thế, vững chãi mà không nặng nề, loại mái này có độ dốc vừa phải, các lớp mái xếp chồng gọn gàng giúp công trình trông cao ráo và thanh thoát hơn so với các mẫu mái truyền thống. Công trình sử dụng ngói lợp màu xanh than tạo điểm nhấn sang trọng đồng thời rất hài hòa với gam tường trắng kết hợp xanh nhạt của ngoại thất.

Nhìn từ mặt tiền, điểm gây chú ý là hệ cửa sổ có mái trang trí nhô ra phía trước giúp tăng tính thẩm mỹ và che nắng mưa hiệu quả. Cửa sổ được lắp đặt kính ở ba mặt tạo cảm giác mở rộng không gian để ánh sáng tự nhiên tràn vào bên trong. Đây là chi tiết nhỏ nhưng cho thấy sự tính toán kỹ lưỡng của kiến trúc sư trong việc cân bằng giữa công năng và thẩm mỹ cho mẫu nhà cấp 4 mái Nhật tân cổ điển này.


Khu vực sảnh chính và sảnh phụ được thiết kế rất đẹp và sang trọng, sảnh chính nổi bật với mái vòm mềm mại mang hơi hướng cổ điển nhẹ nhàng. Hai bên cột sảnh được bố trí đèn treo trang trí để khi lên đèn vào buổi tối sẽ tạo nên khung cảnh ấm áp và tinh tế. Sảnh phụ tuy gọn gàng hơn nhưng vẫn giữ được sự đồng bộ trong ngôn ngữ thiết kế giúp việc di chuyển trong sinh hoạt hằng ngày trở nên thuận tiện. Khi căn nhà anh Tâm lên đèn vào ban đêm, vẻ đẹp lại càng rõ nét hơn nhờ ánh sáng vàng hắt ra từ hệ cửa kính kết hợp với đèn treo cột ở sảnh cùng đèn âm dưới mái khiến ngôi nhà trở nên ấm cúng và nổi bật giữa không gian xung quanh. Hệ mái Nhật xanh than lúc này càng thêm trầm và sang, tôn lên toàn bộ hình khối kiến trúc.


Tiếp theo là bậc thềm nhà được nâng cao khoảng 750mm so với sân tạo thành 5 bậc đi lên vững chãi, cách thiết kế độ cao này giúp ngôi nhà cấp 4 trông cao ráo, khô thoáng và bề thế hơn hẳn. Phần chân tường được ốp đá tối màu và phía trên là đường phào trắng chạy men theo xung quanh nhà tạo sự phân tầng rõ ràng cho mặt đứng. Ngoài ra, những chi tiết phào chỉ không quá cầu kỳ nhưng vẫn đủ để làm nổi bật chất tân cổ điển khiến tổng thể nhà cấp 4 mái Nhật tân cổ điển trở nên mềm mại và có chiều sâu.


Không chỉ mặt tiền, các mặt bên và phía sau ngôi nhà anh Tâm cũng được đầu tư kỹ lưỡng. Phía sau còn có thêm một lối đi phụ và khung cửa cũng được đắp phào lồi trang trí sang trọng để đồng bộ với thiết kế chung. Bao quanh công trình là hệ chỉ âm chạy đều tạo cảm giác liền mạch và gọn gàng để khi nhìn ở bất kỳ góc độ nào cũng thấy sự chỉn chu.
Tiện nghi trong căn nhà cấp 4 ấm cúng
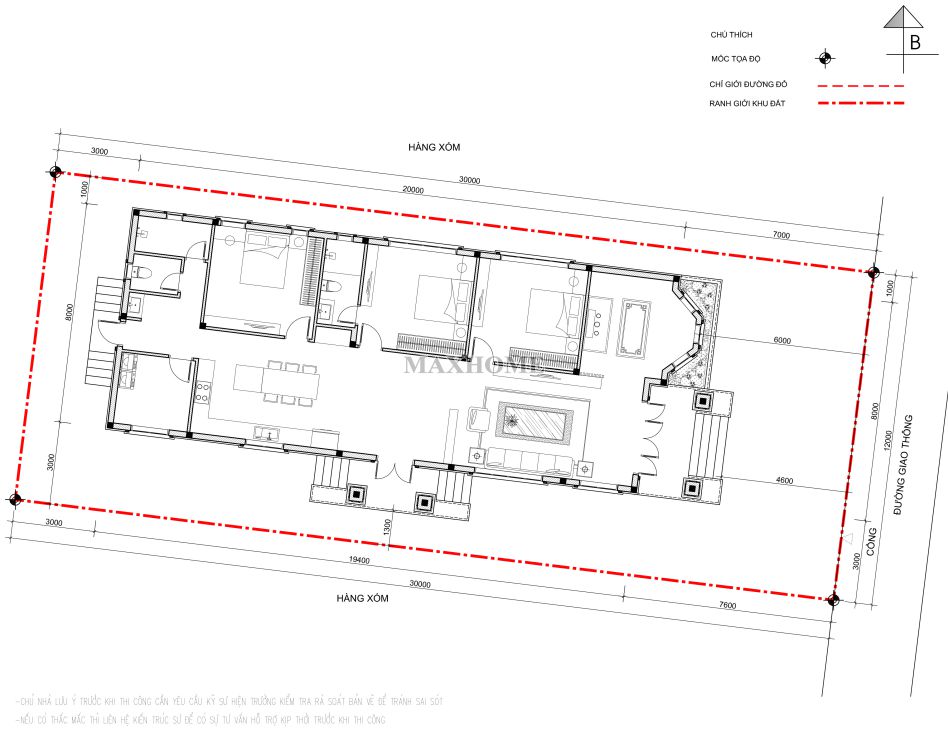
Hình ảnh đầu tiên thể hiện rõ mặt bằng tổng thể khu đất nhà anh Tâm và cách bố trí công trình trong không gian xung quanh. Ngôi nhà cấp 4 mái Nhật tân cổ điển được đặt gọn gàng trong khuôn đất dạng hình chữ nhật, các ranh giới được thể hiện rõ ràng bằng nét đứt đỏ giúp dễ dàng hình dung khoảng lùi và mối quan hệ với khu vực hàng xóm cũng như đường giao thông phía trước. Công trình được bố trí lệch nhẹ theo hình dáng khu đất để tạo sự linh hoạt và tận dụng tối đa diện tích sử dụng. Các khoảng sân, lối đi bao quanh nhà được chừa hợp lý giúp mang lại sự thông thoáng và thuận tiện cho việc di chuyển.

Hình ảnh công năng chi tiết của ngôi nhà cho thấy sự sắp xếp khoa học và liền mạch giữa các không gian sinh hoạt. Từ sảnh chính bước vào là phòng khách rộng 31m2 đóng vai trò trung tâm kết nối toàn bộ ngôi nhà, cạnh đó là phòng thờ 11m2 có ô cửa sổ được thiết kế nhô ra cách tân rất đẹp mắt. Tiếp nối là khu bếp và phòng ăn được bố trí liên thông rộng 32m2 tạo cảm giác thoáng đãng và thuận tiện trong sinh hoạt hằng ngày.

Ba phòng ngủ được sắp xếp dọc theo trục nhà với diện tích vừa vặn để đảm bảo sự riêng tư nhưng vẫn gần gũi. Phía cuối nhà là khu giặt phơi và lối đi phụ phía sau được bố trí gọn gàng giúp tổng thể mặt bằng trở nên đầy đủ, tiện nghi và rất dễ sử dụng trong thực tế. Với bàn tay thiết kế của Maxhome, ngôi nhà anh Tâm không chỉ đẹp về hình thức mà còn thể hiện rõ sự tiện nghi và phù hợp với lối sống của gia đình Việt hiện đại.

