Một công trình sở hữu nét đẹp thanh lịch, nhẹ nhàng và hợp phong thuỷ, một công trình đáp ứng chuẩn mẫu cho những người mệnh Thuỷ, tất cả các yếu tố trên đã làm nên một mẫu nhà 2 tầng mái Nhật hiện đại của chú Trường ở Thái Bình do Maxhome thiết kế. Với gam màu lạnh chủ đạo kết hợp tinh tế giữa trắng và xanh cùng các chi tiết thiết kế hài hoà, ngôi nhà không chỉ đẹp về thẩm mỹ mà còn mang lại cảm giác bình yên, mát mẻ.
Thông tin nhà 2 tầng mái Nhật phù hợp cho người mệnh Thuỷ
| Chủ đầu tư: Chú Trương Đăng Trường | Địa chỉ: Quỳnh Xá, Quỳnh Phụ, Thái Bình |
| Mặt tiền: 9,3m | Kích thước xây dựng: 9,3 x 12,2m |
| Số tầng: 2 tầng | Loại hình: Nhà mái Nhật hiện đại |
| Tổng diện tích: 166m2 | |
Công năng:
|
|
| Đơn vị thiết kế: CÔNG TY TNHH MAXHOME ARCHITECT & DESIGN | |
Tham khảo bản vẽ nhà 2 tầng mái Nhật đẹp ở Thái Bình
Tổng thể ngôi nhà 2 tầng mái Nhật của chú Trường được Maxhome lựa chọn tông màu trắng làm nền, xen kẽ các mảng tường xanh lam nhạt tạo nên sự cân bằng hài hoà. Sắc trắng giúp không gian thêm sáng sủa và thanh thoát trong khi sắc xanh mang đến cảm giác mát dịu, an lành, đây chính là yếu tố phong thuỷ rất tốt cho người mệnh Thuỷ. Bên cạnh đó, cách phối màu này cũng không bị nhàm chán mà còn tạo chiều sâu cho ngoại thất, nhất là khi các mảng màu được bố trí xen kẽ thông minh ở các chi tiết cột nhà, tường và đường phân cách giữa tầng 1 và tầng 2.

Mỗi đường nét, mảng khối đều được chăm chút kỹ lưỡng giúp giữ nét hiện đại và toát lên vẻ sang trọng tinh tế. Nhờ vậy mà nhìn tổng thể căn nhà 2 tầng mái Nhật này đã mang lại cảm giác rộng rãi, cân đối và vô cùng bắt mắt.
Phần nền nhà được nâng cao 750mm so với mặt sân giúp chống ẩm tốt mà còn tạo thế nhà cao ráo và bề thế. Từ hai hướng sảnh chính và sảnh phụ đều có bậc tam cấp dẫn lên vừa thuận tiện sinh hoạt vừa tạo cảm giác đón chào ấm áp cho khách đến chơi.

Với chiều cao mỗi tầng 3,6m, ngôi nhà chú Trường đạt tổng thể cân xứng và thông thoáng. Một trong những chi tiết nổi bật nhất của mẫu nhà 2 tầng mái Nhật này chính là hệ mái có độ cao 2,7m tỏa đều ra bốn hướng mang lại dáng vẻ bề thế nhưng vẫn mềm mại. Nhìn từ xa, phần mái xanh đậm nổi bật trên nền tường trắng xanh nhạt tạo nên tổng thể vô cùng hài hoà. Mái Nhật là kiểu dáng mái hơi hướng Nhật Bản, kiểu mái này có độ dốc nhẹ giúp thoát nước nhanh và phù hợp với điều kiện thời tiết Việt Nam.


Toàn bộ hệ cửa của nhà chú Trường đều được thiết kế bằng khung nhôm kết hợp kính cường lực đã mang lại vẻ đẹp sang trọng, tinh tế và hiện đại. Việc sử dụng vật liệu kính giúp không gian trong nhà luôn tràn ngập ánh sáng tự nhiên đồng thời tạo cảm giác mở rộng không gian. Màu khung nhôm ghi xám được lựa chọn ăn ý với tổng thể gam lạnh của ngôi nhà, giữ được sự đồng điệu trong thiết kế.

Maxhome đặc biệt chú trọng các chi tiết hoàn thiện ở phần ngoại thất. Khu vực chân tường công trình được ốp gạch màu xám xanh nhạt có tác dụng bảo vệ tường trước tác động của thời tiết và tôn lên vẻ chắc chắn và sạch sẽ cho công trình. Các đường phào chỉ ngang tầng cũng được xử lý sắc nét, tạo điểm ngăn giữa tầng 1 và tầng 2 đồng thời nhấn mạnh chiều ngang giúp ngôi nhà thêm cân đối.

Trên tầng 2, ban công được lắp lan can kính cường lực cao 1m chắc chắn, an toàn mà tầm nhìn không bị che khuất. Kết hợp cùng cửa kính lớn phía sau càng giúp cho khu vực ban công là nơi đón ánh sáng và gió tự nhiên rất tốt, giúp không gian tầng 2 luôn thoáng đãng. Chi tiết lan can kính cũng là một điểm cộng lớn trong thiết kế này, góp phần hoàn thiện vẻ hiện đại và tinh tế cho toàn bộ mặt tiền.
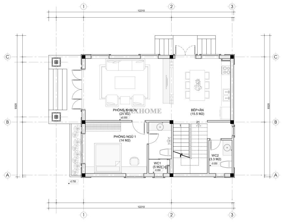
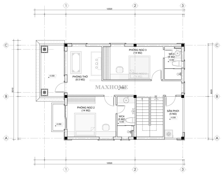
Mặt bằng bố trí công năng chi tiết nhà vườn 2 tầng

Ngôi nhà 2 tầng mái Nhật của chú Trường được xây dựng trên diện tích 9,3×12,2m với tổng diện tích hai sàn là 166m2 rộng rãi và lý tưởng cho gia đình đông người sinh sống thoải mái. Trên hình ảnh mặt bằng định vị công trình, mẫu nhà đẹp này nằm trên mảnh đất rất rộng lớn, sở hữu khu vườn rộng phía trước và cạnh ao làng mát mẻ giúp vị trí này có rất nhiều sinh khí tốt lành.

Từ sảnh chính bước vào là phòng khách rộng 24m2 được đặt bộ bàn ghế sofa lớn ở giữa, đối diện là kệ TV đặt cạnh vách lam gỗ, khéo léo tách biệt phòng bếp mà không bị bí bách bởi các bức tường truyền thống xưa. Căn phòng bếp nhà chú Trường cũng được sắp xếp gọn gàng với hệ tủ bếp chữ I cùng bộ bàn ăn 6 ghế ngồi. Ngoài ra, tầng 1 còn có 1 phòng ngủ 14m2 sở hữu riêng nhà vệ sinh bên trong, nhà vệ sinh chung được khéo léo bố trí phía cuối nhà một cách gọn gàng và sạch sẽ.


Tầng 2 bố trí không gian thờ trang nghiêm với diện tích 8,5m2 hướng ra ban công thoáng mát mở rộng phía trước. Phía sau là 2 phòng ngủ đồng diện tích 14m2 bố trí nội thất cơ bản và đầy đủ, mỗi phòng đều có riêng nhà vệ sinh bên trong rất thuận tiện. Phía cuối nhà là khu vực sân phơi rộng 5m2 thoải mái để phơi đồ một cách kín đáo mà thoáng mát.

Nhìn chung, mẫu nhà 2 tầng mái Nhật gam màu lạnh của chú Trường ở Thái Bình kết hợp hài hoà giữa yếu tố thẩm mỹ, công năng và phong thuỷ. Đặc biệt, gam màu trắng và xanh giúp mang lại cảm giác tươi mát, nhẹ nhàng, rất hợp mệnh Thuỷ mà lại thể hiện rõ gu thẩm mỹ tinh tế của gia chủ. Đây thực sự là một mẫu nhà đáng tham khảo cho những ai yêu thích phong cách hiện đại, thanh thoát nhưng vẫn ấm cúng và gần gũi.

