Mẫu nhà vườn mái Thái dưới đây đạt tiêu chí sang trọng, tinh tế và công năng tiện nghi được rất nhiều khách hàng tham khảo. Công trình thuộc sở hữu của gia đình anh Ngân với kinh phí chỉ khoảng 1,5 tỷ đồng, gia chủ đã sở hữu một ngôi nhà mang đậm dấu ấn kiến trúc tân cổ điển kết hợp cùng công năng tối ưu và vẻ đẹp thẩm mỹ vượt thời gian.
Thông tin nhà vườn mái Thái đẳng cấp và sang trọng
| Chủ đầu tư: Anh Triệu Văn Ngân | Địa chỉ: Đắk N’Drót, Đắk Mil, Đắk Nông |
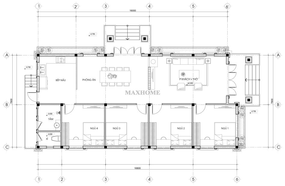
| Mặt tiền: 7,8m | Kích thước xây dựng: 7,8 x 16,8m |
| Số tầng: 1 tầng | Loại hình: Nhà mái Thái tân cổ điển |
| Tổng diện tích: 135m2 | |
| Công năng:
Phòng khách, phòng bếp, phòng ăn, 4 phòng ngủ, 1 wc, 1 phòng tắm |
|
| Đơn vị thiết kế: CÔNG TY TNHH MAXHOME ARCHITECT & DESIGN | |
Mẫu nhà vườn 1 tầng mái Thái tuyệt đẹp ở Đắk Nông
Ngôi nhà vườn mái Thái của anh Ngân nổi bật nhờ phong cách tân cổ điển có sự pha trộn hoàn hảo giữa nét cổ điển sang trọng và hơi thở hiện đại. Từng chi tiết phào chỉ được Maxhome chăm chút tỉ mỉ từ những đường viền quanh cửa sổ, các cột trụ vuông vức đến phần mái vòm ở sảnh chính. Tất cả đều được bố cục hài hòa, mềm mại và tạo nên một tổng thể kiến trúc cân đối, thanh lịch.

Khác với nhiều mẫu thiết kế nhà cấp 4 thông thường, ngôi nhà này sở hữu chiều cao tầng 1 lên tới 3,9m và chiều cao mái 4,5m. Chính sự tỷ lệ vàng này giúp tổng thể ngôi nhà trở nên cao ráo, bề thế và không hề lép vế khi đặt cạnh những ngôi nhà 2 – 3 tầng xung quanh. Đây là một trong những đặc điểm khiến mẫu nhà vườn mái Thái của anh Ngân thêm phần đẳng cấp và nổi bật giữa không gian xanh mát của vùng đất Đắk Nông.

Công trình được thiết kế với nền móng cao 750mm tạo sự thông thoáng và giúp tránh ẩm thấp hiệu quả, rất cần thiết với khí hậu Tây Nguyên. Hệ bậc tam cấp gồm 5 bậc thềm cao ráo, ốp đá Granite dày 20mm chắc chắn và chống chọi tốt với thời tiết khắc nghiệt.

Đặc biệt, khu vực sảnh chính và sảnh phụ đều được xây bồn cây chạy dọc quanh nhà mang đến vẻ tươi mát và gần gũi thiên nhiên. Đây là một chi tiết tuy nhỏ nhưng thể hiện rõ sự tinh tế trong thiết kế của Maxhome vì không chỉ chú trọng thẩm mỹ mà còn hướng đến cảm xúc sống thoải mái, thư thái cho gia chủ.

Nhìn tổng thể, ngôi nhà vườn mái Thái tân cổ điển khoác lên mình lớp áo màu sơn trắng chủ đạo kết hợp cùng màu nâu làm điểm nhấn ở các mảng tường gác mái. Sự phối màu này không chỉ giúp công trình toát lên vẻ sang trọng mà còn làm nền hoàn hảo cho hệ mái Thái ngói xanh nổi bật phía trên.

Ngoài ra, mặt tiền và sảnh phụ của mẫu nhà đẹp này cũng được nhấn bằng sơn giả đá vàng nhẹ nhàng mang lại cảm giác ấm áp và cao cấp hơn. Hệ mái Thái với độ dốc chuẩn lợp ngói Maxhome cao cấp mã M05 không chỉ đẹp mà còn đảm bảo khả năng chống nóng, thoát nước tốt.
Mỗi chi tiết từ cột trụ, phào chỉ đến bậc tam cấp đều thể hiện rõ triết lý thiết kế của Maxhome “Giá trị tạo nên thương hiệu”. Đây chính là lý do khiến công trình nhà anh Ngân trở thành mẫu nhà vườn mái Thái tiêu biểu và được nhiều người yêu thích và lựa chọn trong năm 2025 này.
Khám phá công năng của mẫu nhà vườn
Với diện tích xây dựng 135m2 với kích thước 7,8×16,8m, ngôi nhà vườn mái Thái tân cổ điển thoải mái sinh hoạt và còn sở hữu một khoảng sân vườn rộng lớn xung quanh nhà. Dù chỉ có 1 tầng nhưng nhờ chiều cao lớn, mái Thái bề thế và không gian mở hài hòa, ngôi nhà mang lại cảm giác thoáng đãng, sang trọng chẳng khác gì biệt thự vườn mini.

Một trong những yếu tố giúp công trình đạt đến độ hoàn thiện cao chính là quy trình khảo sát thực tế tỉ mỉ của đội ngũ kỹ thuật Maxhome. Trước khi bắt đầu thiết kế, Maxhome đã đến tận nhà anh Ngân tại Đắk Nông để đo đạc, chụp ảnh, xác định hướng đất và địa hình.
Các thiết bị đo hiện đại và hình ảnh flycam chất lượng cao giúp đội ngũ kiến trúc sư có cái nhìn tổng quan về khu đất, đảm bảo bản vẽ chuẩn kích thước thực tế và phù hợp phong thủy. Nhờ vậy, phương án thiết kế không chỉ đẹp mà còn tận dụng tối đa không gian, hướng gió, ánh sáng và cảnh quan tự nhiên xung quanh.

Từ sảnh chính đi vào sẽ tới trực tiếp phòng khách kết hợp gian thờ treo tiết kiệm diện tích mà vẫn trang nghiêm. Phía sau vách ngăn gỗ là phòng ăn lớn với 8 ghế ngồi, sau đó sẽ tới phòng bếp có vách ngăn mỏng để việc nấu ăn có sự riêng tư hơn. Trải dài dọc theo hành lang giữa nhà là 4 phòng ngủ sắp xếp gọn gàng và đều bài trí nội thất cơ bản. Đi ra cửa phụ sau nhà sẽ tới khu vực vệ sinh chung, việc bố trí riêng này giúp không gian sinh sống trong nhà được sạch sẽ.
Chỉ với 1,5 tỷ đồng, gia chủ đã có thể sở hữu một mẫu nhà vườn mái Thái sang trọng, tiện nghi và đầy tính thẩm mỹ như thế này. Nhanh tay liên hệ với Maxhome để nhận ưu đãi sớm nhất nhé!

