Ngắm nhìn mẫu nhà ống 2 tầng 5x17m với những đường cong mềm mại kết hợp phối màu ấn tượng, nhiều gia chủ dễ dàng bị chinh phục ngay từ ánh nhìn đầu tiên. Công trình do Maxhome lên phương án thiết kế cho gia đình chị Huyền tại Hưng Yên, khéo léo dung hòa giữa thẩm mỹ hiện đại, hình khối uyển chuyển và gam màu hài hòa. Nhờ đó, ngôi nhà không chỉ sở hữu mặt tiền nổi bật giữa khu phố mà còn đáp ứng trọn vẹn mong muốn về không gian sống đẹp, thoáng đãng và bền vững theo thời gian.
Thông tin công trình nhà ống 2 tầng 5x17m
| Chủ đầu tư: Chị Dương Thị Thu Huyền | Địa chỉ: Phố Hiến, Hưng Yên |
| Mặt tiền: 5m | Kích thước xây dựng: 5 x 17m |
| Số tầng: 2 tầng | Loại hình: Nhà phố mái bằng hiện đại |
| Tổng diện tích: 175m² | |
Công năng:
| |
| Đơn vị thiết kế: CÔNG TY TNHH MAXHOME ARCHITECT & DESIGN | |
Nhà ống 2 tầng 5x17m cuốn hút với đường cong tinh tế và ấn tượng
Mẫu nhà ống 2 tầng 5x17m gây ấn tượng mạnh nhờ ngôn ngữ kiến trúc hiện đại pha nét mềm mại. Thay vì những mảng vuông cứng nhắc thường thấy ở nhà ống, kiến trúc sư đã khéo léo đưa các đường cong vòm lớn vào mặt tiền tầng 2. Chi tiết này không chỉ tạo điểm nhấn thị giác mà còn giúp tổng thể ngôi nhà trở nên nhẹ nhàng, thanh thoát hơn rất nhiều. Khối ban công cong ôm trọn khung cửa kính lớn tạo cảm giác mặt tiền rộng rãi hơn so với thực tế 5m. Đây là một thủ pháp thiết kế rất thông minh, đặc biệt phù hợp với những gia chủ lo lắng nhà ống sẽ bị hẹp và bí.

Mặt tiền ngôi nhà nổi bật với chi tiết “đắt giá” là hệ vòm cong ở tầng 2. Đường cong được xử lý dứt khoát nhưng mềm mại, tạo cảm giác liền mạch, không rối mắt. Khi ánh sáng chiếu vào, các lớp cong tạo nên hiệu ứng đổ bóng rất đẹp, làm nổi bật chiều sâu kiến trúc.
Sự xuất hiện của đường cong còn mang ý nghĩa phong thủy, tượng trưng cho sự uyển chuyển, hài hòa, giúp không gian sống trở nên dễ chịu và cân bằng hơn. Đây là điều mà rất nhiều gia chủ nhà phố hiện nay quan tâm khi thiết kế nhà ở lâu dài.

Gam màu chủ đạo của công trình là trắng kem kết hợp cam đất và đen nhấn. Màu trắng mang lại cảm giác sạch sẽ, hiện đại, giúp ngôi nhà luôn sáng và nổi bật trên phố. Màu cam đất được sử dụng có chủ đích, tập trung ở các mảng nhấn và chi tiết cong, tạo sự ấm áp và cá tính.
Sự kết hợp này không quá rực rỡ nhưng đủ khác biệt để ghi dấu ấn. Đặc biệt, khi đặt trong bối cảnh đô thị với nhiều nhà ống xung quanh, ngôi nhà vẫn nổi bật mà không gây cảm giác lạc lõng hay “quá tay”.

Ngoại thất sử dụng sơn hoàn thiện cao cấp kết hợp hài hòa với khung cửa kính lớn viền đen, lan can kính trong suốt và các chi tiết kim loại sơn tĩnh điện. Sự lựa chọn vật liệu này không chỉ đảm bảo độ bền, khả năng chống chịu thời tiết tốt theo thời gian mà còn tôn lên tinh thần kiến trúc hiện đại, gọn gàng và sang trọng.
Ở tầng 1, hệ cửa cuốn hiện đại được lựa chọn nhằm tối ưu công năng sử dụng và đảm bảo an ninh cho ngôi nhà. Cửa cuốn có thiết kế gọn gàng, vận hành êm ái kết hợp với khung bo cong mềm mại và hệ đèn hắt tinh tế, cửa cuốn không còn là chi tiết kỹ thuật đơn thuần mà trở thành một phần hài hòa trong tổng thể kiến trúc ngôi nhà. Hệ cửa kính lớn ở tầng 2 đóng vai trò quan trọng trong việc đón ánh sáng tự nhiên, mở rộng tầm nhìn và kết nối không gian nội thất với bên ngoài.

Dù diện tích không lớn, ngôi nhà vẫn được bố trí mảng xanh hợp lý ở ban công và các hốc tường. Những chậu cây nhỏ, cây bụi xanh mát giúp làm mềm kiến trúc, giảm cảm giác bê tông hóa, đồng thời mang lại bầu không khí dễ chịu cho gia đình.
Không gian xanh không chỉ để ngắm mà còn có tác dụng điều hòa vi khí hậu, giảm nhiệt cho mặt tiền, đặc biệt hữu ích với nhà phố hướng nắng. Đây là yếu tố ngày càng được các gia chủ trẻ ưu tiên khi thiết kế nhà ống 2 tầng 5x17m hiện đại.
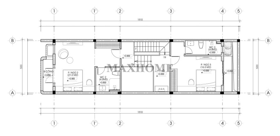
Bản vẽ chi tiết công năng

Về vị trí, công trình nằm ở hướng Tây Bắc, có kích thước 5 x 17m, tổng diện tích sử dụng rơi vào khoảng 175m². Mặt bằng công năng được bố trí khoa học, chú trọng tính tiện nghi và linh hoạt theo thói quen sinh hoạt thực tế, nhằm mang đến cho các thành viên trong gia đình một không gian sống tối ưu và thoải mái nhất.

Từ cửa chính bước vào là khoảng sân rộng 10,5m² được bố trí làm nơi để xe gọn gàng, thuận tiện cho sinh hoạt hằng ngày. Tiếp nối không gian này là phòng khách hiện ra với vẻ đẹp sang trọng và chỉn chu, không chỉ đóng vai trò tiếp đón khách mà còn thể hiện rõ phong cách sống tinh tế, gu thẩm mỹ và sự hiếu khách của gia chủ.
Liền kề phía sau là khu vực bếp và phòng ăn được sắp xếp khoa học, đầy đủ tiện nghi nhưng vẫn giữ được cảm giác ấm cúng, gần gũi, trở thành nơi gắn kết các thành viên qua những bữa cơm gia đình. Cuối nhà bố trí một phòng ngủ riêng tư cùng nhà vệ sinh chung và sân ướt, đáp ứng trọn vẹn nhu cầu sinh hoạt.

Phòng thờ được bố trí trang trọng trên tầng 2, đảm bảo sự yên tĩnh và tôn nghiêm, thể hiện lòng thành kính cũng như sự gìn giữ những giá trị tâm linh truyền thống của gia đình. Bên cạnh đó là không gian nghỉ ngơi riêng tư với 2 phòng ngủ rộng rãi, được thiết kế thông thoáng, tiện nghi và tích hợp WC khép kín, mang lại sự thoải mái, thuận tiện và riêng tư cho từng thành viên.






