Mới đây, tại mảnh đất Hải Phòng đầy nắng gió biển, đội ngũ kiến trúc sư Maxhome đã kiến tạo nên một công trình hiện đại cho gia đình chú Toàn, đó là một ngôi nhà 3 tầng 1 tum mang vẻ đẹp hoành tráng nhưng không kém phần thanh lịch, định nghĩa lại khái niệm về sự sang trọng trong phong cách hiện đại mà mềm mại.
Thông tin nhà 3 tầng 1 tum toạ lạc tại Hải Phòng
| Chủ đầu tư: Anh Bùi Văn Toàn | Địa chỉ: Lập Lễ, Thuỷ Nguyên, Hải Phòng |
| Mặt tiền: 9,2m | Kích thước xây dựng: 9,2 x 23,3m |
| Số tầng: 3 tầng 1 tum | Loại hình: Nhà mái bằng hiện đại |
| Tổng diện tích: 385m2 | |
Công năng:
(Công trình có sử dụng thang máy) |
|
| Đơn vị thiết kế: CÔNG TY TNHH MAXHOME ARCHITECT & DESIGN | |
Ngoại thất căn nhà 3 tầng 1 tum mái bằng đẹp mọi góc nhìn
Ngay từ cái nhìn đầu tiên, ngôi nhà 3 tầng 1 tum đã gây ấn tượng mạnh bởi ngôn ngữ thiết kế khác biệt vì những góc cạnh sắc sảo thường thấy của kiến trúc tối giản, công trình của chú Toàn được cách điệu đầy nghệ thuật với những đường bo cong mềm mại ngay tại mặt tiền. Những nét uốn lượn này không chỉ làm giảm đi sự thô cứng của bê tông cốt thép mà còn tạo ra một nhịp điệu chuyển động uyển chuyển cho thị giác. Đồng điệu với kiến trúc đó, hệ ban công cũng được lắp đặt lan can kính cường lực uốn cong theo mặt sànđã tạo nên một tổng thể hài hòa và tinh tế.

Ánh sáng và không gian mở chính là điểm nổi bật của căn nhà 3 tầng 1 tum này. Maxhome đã khéo léo sử dụng hệ cửa khung nhôm kính cao cấp cho toàn bộ ngôi nhà để tạo nên sự kết nối không giới hạn giữa con người và thiên nhiên bên ngoài. Điểm nhấn đắt giá nhất nằm ở tầng 2, nơi góc tường được xóa bỏ để nhường chỗ cho hệ cửa sổ kính lớn bo tròn theo đường cong của kiến trúc. Cách thiết kế này không chỉ khoe trọn vẻ đẹp hiện đại mà còn giúp phòng ngủ bên trong luôn ngập tràn ánh sáng tự nhiên và mở ra tầm nhìn tuyệt đẹp.

Khi hoàng hôn buông xuống, ngôi nhà 3 tầng 1 tum lại khoác lên mình một vẻ đẹp lung linh khác. Dưới các sê-nô mái, hệ thống đèn LED âm trần tỏa ra ánh sáng vàng dịu nhẹ giúp tôn vinh các đường nét kiến trúc và làm cho ngôi nhà trở nên ấm áp, gần gũi hơn. Quan sát từ nhiều góc độ, có thể thấy đội ngủ thiết kế Maxhome đã rất tỉ mỉ trong việc bố trí mật độ cửa sổ dày đặc nhưng hợp lý ở các mặt bên, đảm bảo mọi ngách nhỏ trong không gian sống đều được lưu thông khí trời và đón nhận nguồn năng lượng tích cực từ ban mai.

Bên cạnh yếu tố thẩm mỹ, công năng sử dụng cũng được chú trọng đặc biệt để phù hợp với nếp sinh hoạt của gia đình chú Toàn. Một chi tiết rất thực tế trong thiết kế này là khu vực bếp phụ được tách riêng phía sau nhà giúp việc nấu nướng các món ăn đậm mùi trở nên thuận tiện mà không ảnh hưởng đến không gian nội thất chính. Bước chân vào nhà, sự vững chãi được cảm nhận rõ rệt qua các bậc thềm được lát đá Granite cao cấp với vân đá tự nhiên và bền bỉ theo thời gian.

Về tổng thể hình khối, hệ mái bằng là lựa chọn hoàn hảo vô cùng ăn nhập với phong cách hiện đại mà căn nhà 3 tầng 1 tum này hướng tới. Tầng tum phía trên cùng được thiết kế tinh tế với tường bao cao 600mm vừa đảm bảo độ an toàn vừa giữ được sự thông thoáng cho khoảng sân thượng. Đây cũng là nơi lý tưởng để đặt các thiết bị kỹ thuật như téc nước và hệ thống thái dương năng giúp tối ưu hóa công năng mà vẫn giữ được tính thẩm mỹ cho mặt đứng công trình.

Khám phá công năng của mẫu nhà hiện đại

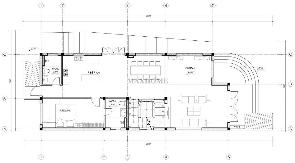
Bản vẽ tổng thể cho thấy khu đất nhà 3 tầng 1 tum của chú Toàn có hình dáng đặc thù với chiều sâu lớn và thắt lại ở phía cuối, tiếp giáp trực tiếp với mặt đường giao thông chính thông qua một lối vào dài. Công năng sử dụng được tính toán kỹ lưỡng để tận dụng tối đa diện tích bao gồm một khối nhà phụ biệt lập ở phía sau cùng để làm khu vực bếp phụ. Khối nhà chính được đặt ở vị trí trung tâm khu đất với các khoảng lùi hợp lý kết hợp cùng hệ thống bậc tam cấp và sảnh đón rộng rãi phía trước tạo nên một không gian sống yên tĩnh và tách biệt hẳn với sự ồn ào của phố thị bên ngoài.

Không gian tầng 1 được thiết kế theo lối mở hiện đại và sang trọng, bắt đầu từ sảnh chính dẫn vào phòng khách rộng lớn được bố trí bộ sofa uy nghi hướng ra khoảng sân trước. Tiếp nối là khu vực phòng bếp và ăn tích hợp với bàn ăn 10 chỗ ngồi tạo nên không gian sinh hoạt chung đầm ấm cho gia đình đại gia đình, trong khi một phòng ngủ nhỏ có nhà vệ sinh riêng bên trong được bố trí khéo léo phía sau để đảm bảo sự riêng tư. Trục giao thông đứng bao gồm thang bộ ôm lấy thang máy được đặt tại trung tâm, phía cuối nhà là nhà vệ sinh chung phục vụ tiện nghi cho cả khu vực sinh hoạt giúp tối ưu hóa công năng sử dụng trên một mặt bằng trải dài.

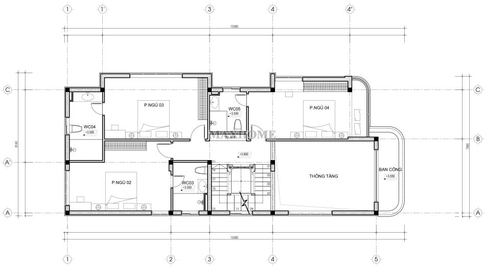
Tầng 2 tập trung hoàn toàn vào chức năng nghỉ ngơi với 3 phòng ngủ riêng biệt được kết nối thông qua sảnh thang chung và hành lang nội bộ. Phòng ngủ 02 và phòng ngủ 03 được bố trí về một phía với hệ thống vệ sinh khép kín, trong khi phòng ngủ 04 chiếm lĩnh không gian phía trước với góc nhìn thoáng đãng và nhà vệ sinh riêng biệt. Điểm nhấn đặc biệt của tầng này chính là khoảng thông tầng rộng lớn phía trước mang đến kết nối thị giác mạnh mẽ với tầng dưới rất thông thoáng, tràn ngập ánh sáng tự nhiên cho toàn bộ các phòng ngủ và khu vực ban công đua ra phía ngoài.

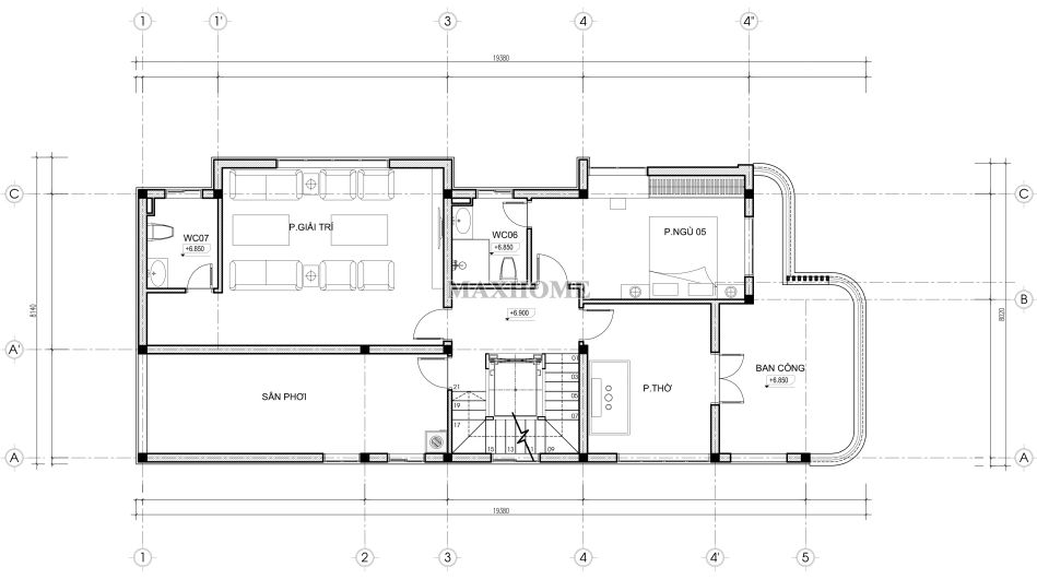
Tầng 3 là sự kết hợp hài hòa giữa không gian giải trí, tâm linh và khu vực phụ trợ, đáp ứng đầy đủ nhu cầu nâng cao của gia chủ. Tại đây, một phòng giải trí rộng lớn được bố trí phía sau với nhà vệ sinh riêng rất lý tưởng cho các hoạt động thư giãn gia đình chú Toàn. Phía trước là phòng thờ trang nghiêm nhìn thẳng ra ban công lớn để đón vượng khí. Ngoài ra, tầng này còn có thêm 1 phòng ngủ với vệ sinh khép kín và khu vực sân phơi rộng rãi phía sau đảm bảo tính thẩm mỹ cho mặt tiền nhà mà vẫn đáp ứng tốt nhu cầu giặt phơi, sinh hoạt thường nhật một cách kín đáo và tiện lợi.

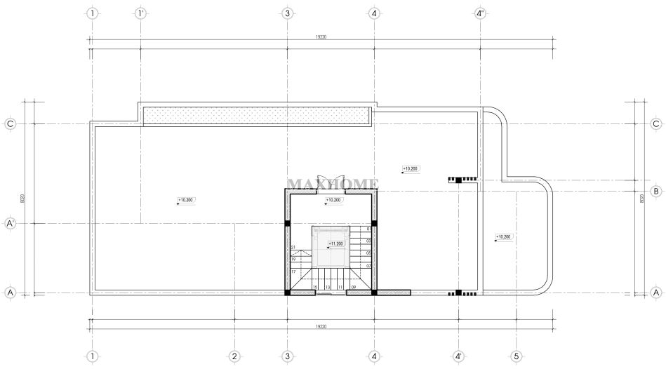
Tầng tum được thiết kế tối giản nhưng đóng vai trò quan trọng trong việc điều hòa vi khí hậu và bảo vệ toàn bộ cấu trúc công trình phía dưới của căn nhà 3 tầng 1 tum. Không gian chủ yếu tập trung vào khu vực kỹ thuật bao gồm buồng thang máy và thang bộ dẫn lên tạo lối tiếp cận để bảo trì hệ thống mái cũng như các thiết bị bồn nước và năng lượng mặt trời. Phần diện tích còn lại được bao quanh bởi hệ thống tường bao chắc chắn kết hợp với các khoảng hở và ô lấy sáng cho khu vực thông tầng giúp lưu thông không khí từ trên xuống dưới, đảm bảo cho ngôi nhà luôn khô ráo và thoáng đãng trong mọi điều kiện thời tiết.

