Bài viết này tiếp tục giới thiệu đến bạn mẫu thiết kế nhà vườn 2 tầng quốc dân của Maxhome. Đây là kiểu nhà đã gây hot hit nhiều năm gần đây nhờ vẻ đẹp ngoại thất nổi bật và khả năng bố trí không gian linh hoạt cho từng gia đình. Màu sơn trắng và xanh tiếp tục được giữ làm chủ đạo. Chỉ hai gam màu cơ bản nhưng qua tay nghề khéo léo của đội ngũ Maxhome mà công trình vẫn sáng, sang và có cá tính riêng.
Thông tin nhà vườn 2 tầng đẳng cấp
| Chủ đầu tư: Anh Lê Trọng Hải | Địa chỉ: Hoằng Hoá, Thanh Hoá |
| Mặt tiền: 9,7m | Kích thước xây dựng: 9,7 x 13,1m |
| Số tầng: 2 tầng | Loại hình: Nhà mái Nhật hiện đại |
| Tổng diện tích: 187m2 | |
Công năng:
|
|
| Đơn vị thiết kế: CÔNG TY TNHH MAXHOME ARCHITECT & DESIGN | |
Bản vẽ nhà chi tiết 2 tầng ở Thanh Hóa
Công trình dưới đây thuộc sở hữu của gia đình anh Hải ở Thanh Hoá, mẫu nhà vườn 2 tầng này thể hiện sự tinh gọn nhưng vẫn đầy ấn tượng. Ngay khi cầm bản vẽ trên tay, gia đình anh Hải đã rất hào hứng vì thiết kế bước ra đúng như mong đợi. Mẫu nhà đẹp hiện lên với phong cách trẻ trung, sạch sẽ và mang hơi thở hiện đại.

Điểm nhấn tiếp theo giúp căn nhà vườn 2 tầng nổi bật chính là cách sử dụng hệ cửa kính khung nhôm. Toàn bộ các ô cửa đều được làm bằng kính trong giúp lấy sáng tối đa cho không gian bên trong. Nhờ vậy, mọi khu vực trong nhà đều thông thoáng và có cảm giác rộng hơn so với diện tích thật. Điều này đặc biệt phù hợp với gia đình trẻ yêu thích phong cách sống gần gũi thiên nhiên. Từ bên ngoài nhìn vào, hệ cửa kính mang đến cảm giác hiện đại, nhẹ nhàng và làm cho mặt tiền trở nên thanh thoát. Đây cũng là xu hướng được nhiều mẫu nhà vườn 2 tầng áp dụng nhưng ở công trình của anh Hải, Maxhome đã tinh chỉnh tỷ lệ cửa hợp lý để tăng độ hài hòa cho toàn bộ mặt đứng.

Kiến trúc mái Nhật thanh lịch tạo cảm giác cân bằng cho cả tổng thể. Phần mái được thiết kế với độ dốc vừa phải, tạo nên sự thoáng đãng và đồng thời giúp ngôi nhà trở nên vững chãi hơn dưới thời tiết thất thường. Nhà vườn 2 tầng kiểu này vốn đã được nhiều gia đình lựa chọn và khi Maxhome áp dụng ngôn ngữ thiết kế quen thuộc nhưng có tinh chỉnh phù hợp với từng chủ đầu tư, công trình vừa giữ được chất riêng vừa không bị lỗi thời theo năm tháng.

Ngoại thất còn gây ấn tượng nhờ phần nền nhà được tôn cao và bố trí thêm 5 bậc dẫn lối vào cửa chính. Chi tiết này tưởng đơn giản nhưng lại tạo sự phân tách rõ rệt giữa mặt sân và không gian sinh hoạt của gia đình anh Hải. Việc nâng nền vừa giúp ngôi nhà vườn 2 tầng khang trang hơn vừa mang yếu tố phong thủy tốt khi lối đi được mở rộng thoải mái. Dưới ánh sáng tự nhiên, màu sơn trắng kết hợp xanh càng làm khu vực sảnh chính trở nên nổi bật và mang lại cảm giác tươi mới mỗi khi bước vào nhà.

Một chi tiết khác cũng góp phần hoàn thiện vẻ đẹp ngoại thất chính là hệ phào trắng bao quanh cửa sổ. Phào được làm đơn giản, không cầu kỳ nhưng lại tạo điểm nhấn nhẹ nhàng giúp mặt tiền không bị trống trải. Kết hợp với đó, Maxhome đã sử dụng gạch thẻ xám ốp tại các mảng tường cần nhấn mạnh để làm tăng tính thẩm mỹ, giúp ngôi nhà sạch và bền hơn trong quá trình sử dụng. Sự hòa quyện giữa phào trắng và gạch xám tạo nên lớp nền vững và sang khiến căn nhà vườn 2 tầng của anh Hải trở nên chỉn chu ngay từ cái nhìn đầu tiên.

Mặt bằng công năng nhà vườn 2 tầng

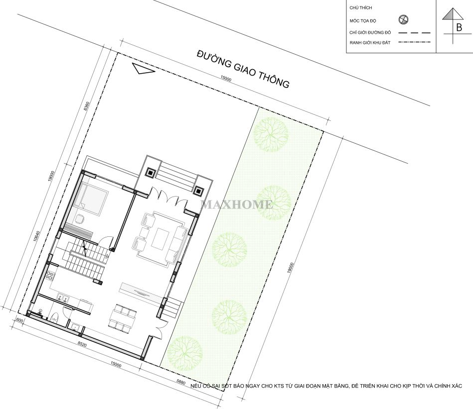
Mẫu nhà vườn 2 tầng mái Nhật toạ lạc trên mảnh đất rất đẹp, có khoảng sân vườn trồng cây xanh bên cạnh giúp tăng không gian tươi mát và trong lành cho nơi ở. Thêm vào đó, ngôi nhà có hai lối đi vào nhà sẽ càng giúp cho không khí trong nhà lưu thông được tốt, thoáng mát, mọi người sẽ đều cảm thấy thoải mái và thư thái trong chính căn nhà của mình.

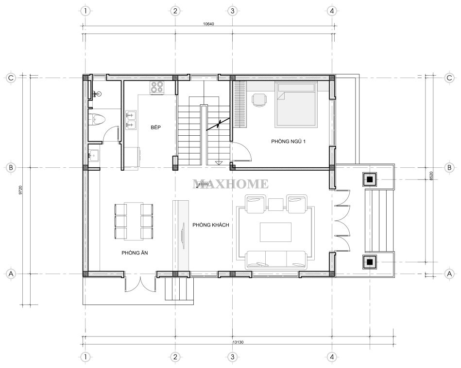
Từ sảnh chính bước vào cửa là phòng khách rộng rãi để đón tiếp bạn bè, khách khứa và gia đình anh Hải có thể sum họp sau một ngày dài. Không gian bếp và khu vực ăn được sắp xếp liên thông để tạo cảm giác liền mạch đồng thời giúp việc nấu nướng và sinh hoạt chung thuận tiện hơn. Một phòng ngủ được đặt ở tầng này, cửa phòng đi vào khéo léo đặt ngay phía dưới hướng cầu thang đi lên nên rất gọn gàng. Cuối cùng là 1 nhà vệ sinh chung nằm ở gần bếp để đảm bảo sự tiện lợi cho cả gia đình lẫn khách ghé thăm.


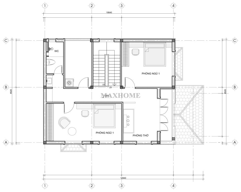
Tầng 2 thiết kế phòng thờ đặt ở vị trí trang trọng và khéo léo có thêm vách ngăn gỗ để tạo nên không gian thờ cúng trang nghiêm hơn. Hai phòng ngủ nằm ở hai bên mang lại không gian riêng cho các thành viên, thoáng sáng nhờ các ô cửa kính và được bố trí hợp lý để ai cũng có cảm giác thoải mái khi nghỉ ngơi. Nhà vệ sinh chung phục vụ sinh hoạt trên tầng thiết kế đồng trục với tầng 1 vừa tiết kiệm diện tích vừa tiện lợi. Sân phơi được bố trí tách biệt, gió thoáng và đón nắng tốt giúp quần áo luôn khô ráo và sạch sẽ.

Nhà anh Hải ở Thanh Hoá là hình mẫu rõ nét cho cách Maxhome tiếp tục phát triển dòng thiết kế nhà vườn 2 tầng quốc dân, nơi vẻ đẹp ngoại thất được chăm chút đúng mức và mang lại sự hài lòng ngay từ bản vẽ đầu tiên. Nếu bạn đang tìm một mẫu nhà vừa đẹp vừa tinh gọn, chi phí hợp lý và dễ thi công thì đây chắc chắn là lựa chọn đáng tham khảo.

