Nhà 2 tầng mái Nhật tân cổ điển đang ngày càng được ưa chuộng bởi vẻ đẹp tinh tế, sang trọng đồng thời thể hiện rõ nét gu thẩm mỹ và đẳng cấp của gia chủ. Mẫu thiết kế mà Maxhome lên phương án cho gia đình anh Thanh tại Thanh Hoá nổi bật nhờ đường nét chuẩn mực, không gian tiện nghi và khả năng tối ưu từng chi tiết sử dụng. Hệ thống cây xanh được sắp đặt bao quanh một cách tinh tế, tạo nên điểm nhấn sinh động cho khuôn viên và góp phần nâng cao giá trị thẩm mỹ của toàn bộ công trình.
Thông tin công trình nhà phố tân cổ điển mái Nhật
| Chủ đầu tư: Anh Trịnh Văn Thanh | Địa chỉ: Xuân Tín, Thanh Hoá |
| Mặt tiền: 11,3m | Kích thước xây dựng: 11,3 x 18,3m |
| Số tầng: 2 tầng | Loại hình: Nhà mái Nhật tân cổ điển |
| Tổng diện tích: 270m² | |
Công năng:
| |
| Đơn vị thiết kế: CÔNG TY TNHH MAXHOME ARCHITECT & DESIGN | |
Mẫu nhà phố tân cổ điển mái Nhật 2 tầng đẹp xuất sắc tại Phú Thọ
Nhà 2 tầng mái Nhật tân cổ điển gây ấn tượng bởi vẻ sang trọng nhẹ nhàng, kết hợp hài hoà giữa tinh thần cổ điển và nét phóng khoáng của kiến trúc hiện đại. Với mặt tiền rộng 11,3m, công trình dễ dàng phô diễn tỷ lệ kiến trúc chuẩn chỉnh, đồng thời tạo không gian mở thoáng đãng giúp tôn lên sự bề thế của tổng thể. Hệ gờ phào được xử lý tinh gọn cùng các đường cong mềm mại bố trí hợp lý đã mang đến chiều sâu cho mặt đứng, tạo nên một diện mạo vừa thanh lịch, vừa đậm chất đặc trưng của phong cách tân cổ điển đương đại.

Khu vực sảnh thu hút mọi ánh nhìn với mái vòm mềm mại và hệ trụ cột kết hợp dáng vuông và tròn, tạo nên một tổng thể hài hòa và giàu giá trị thẩm mỹ. Phào chỉ được xử lý tối giản nhưng khéo léo, kết hợp với các mảng sơn giả đá vân mây trên thân cột giúp mặt tiền toát lên vẻ sang trọng, đồng thời giữ được sự kiên cố đặc trưng của phong cách tân cổ điển.
Hệ bậc tam cấp lát đá granite và bộ cửa gỗ chạm khắc công phu càng làm tăng chiều sâu nghệ thuật, để ngay từ lối vào đã cảm nhận được sự đẳng cấp của công trình.

Toàn bộ hệ cửa sổ sử dụng khung nhôm kính Xingfa kết hợp kính cường lực, giúp mở rộng tầm nhìn, đưa ánh sáng tự nhiên và gió mát lan tỏa vào không gian sống. Đặc biệt, ô cửa sổ vòm ở phía mặt tiền trở thành điểm nhấn mềm mại trên nền kiến trúc tân cổ điển.
Đường cong của vòm giúp mặt đứng hài hòa hơn, cân bằng các khối kiến trúc vuông vức. Cửa vòm còn tạo cảm giác công trình cao và thanh thoát, đồng thời phần vòm mở rộng giúp ánh sáng phân bổ đều, tăng lưu thông không khí và làm cho không gian bên trong thêm rộng rãi và dễ chịu.

Lan can ban công bằng nhôm đúc nghệ thuật là điểm nhấn nổi bật, với các đường nét uốn lượn tinh xảo và sắc vàng sang trọng nổi bật trên nền tường trắng. Không chỉ đẹp về hình thức, chất liệu nhôm đúc còn nổi bật ở độ bền, khả năng chống oxy hóa cao và giữ màu tốt, giúp công trình duy trì vẻ mới mẻ qua nhiều năm sử dụng. Những ban công thanh thoát này góp phần tạo nên bố cục mặt tiền cuốn hút, đồng thời khẳng định rõ phong cách tinh tế và đẳng cấp của mẫu nhà 2 tầng mái Nhật tân cổ điển.

Không gian xanh bao quanh ngôi nhà được sắp đặt hài hòa với thảm cỏ mướt mắt, cây cảnh tạo điểm nhấn và những dải hoa rực rỡ, mang đến bầu không khí trong lành cùng cảm giác thư thái ngay từ lối vào. Khu vực sân đỗ xe lát gạch chống trơn màu xám ghi vừa đảm bảo an toàn khi di chuyển, vừa giúp diện mạo sân vườn luôn sạch sẽ, gọn gàng và tạo nên một tổng thể đồng bộ, tinh tế.

Khám phá công năng tiện nghi vượt trội
Ngôi nhà mái Nhật 2 tầng tân cổ điển được đặt trên khu đất hướng Đông với diện tích xây dựng 11,3 x 18,3m và tổng không gian sử dụng khoảng 270m², đảm bảo đón nắng sớm và lưu thông gió tự nhiên hiệu quả. Bố cục công năng được phân chia khoa học giữa các không gian sinh hoạt chung và khu vực riêng tư, giúp ngôi nhà vận hành mạch lạc, tiện nghi và mang đến sự thoải mái tối đa cho các thành viên.

Bước qua sảnh chính, phòng khách hiện ra với diện tích rộng thoáng, nội thất bố trí tinh tế, vừa thể hiện gu thẩm mỹ của gia chủ vừa tạo cảm giác chào đón ngay từ những bước đầu tiên; liền kề bên phải là không gian phòng thờ được đặt tại vị trí trang nghiêm.
Tiếp nối trục giao thông là khu bếp – ăn ấm cúng, thiết kế mở hướng ra sảnh phụ giúp tăng khả năng lấy sáng, đón gió và giữ cho không gian sinh hoạt luôn thông thoáng. Tầng 1 còn sở hữu 2 phòng ngủ tiện nghi, trong đó 1 phòng có vệ sinh khép kín phù hợp cho ông bà nghỉ ngơi thoải mái, 1 phòng dành cho khách cùng nhà vệ sinh chung bố trí hợp lý, thuận tiện cho mọi thành viên.

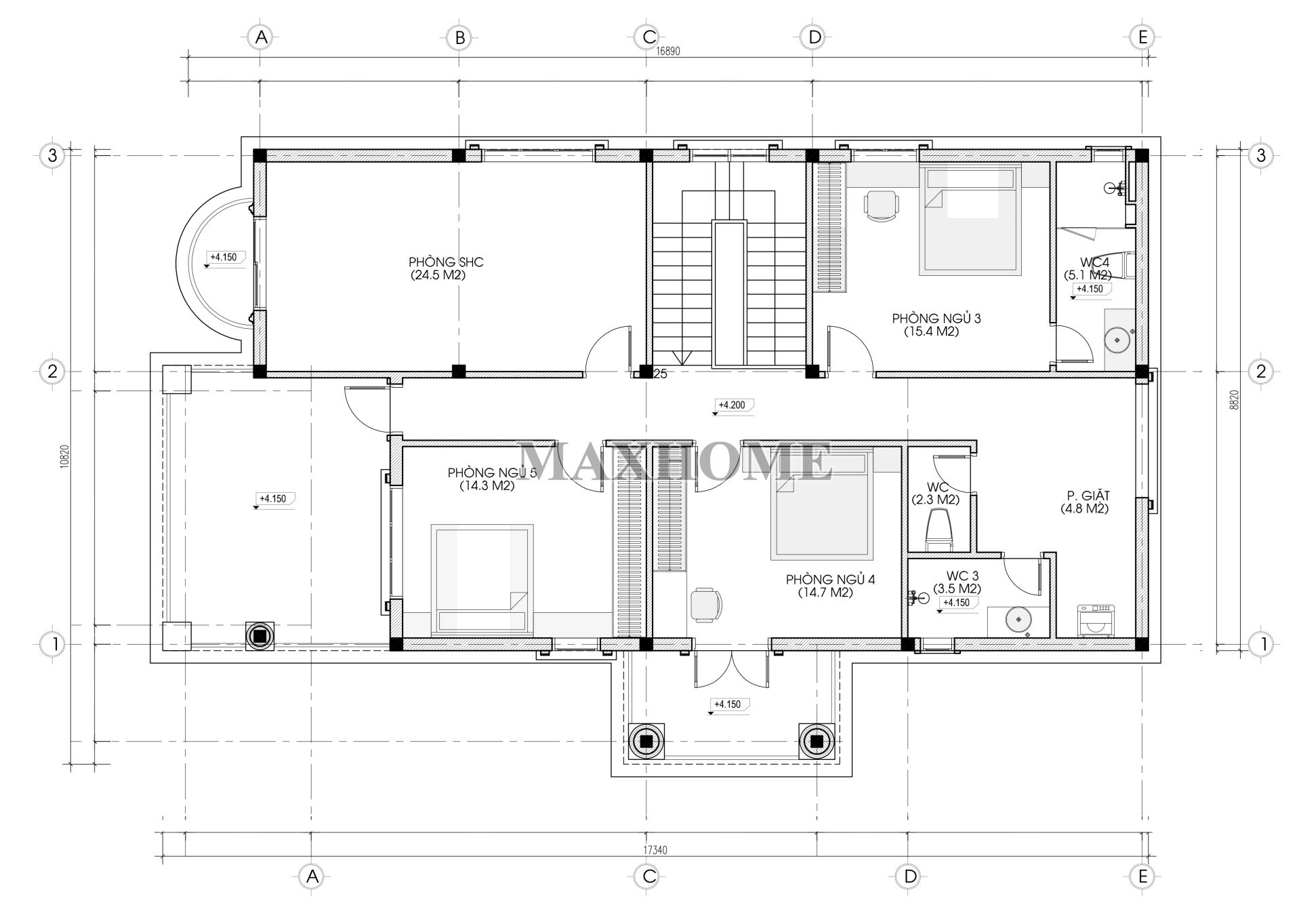
Tầng 2 được tổ chức hợp lý với phòng sinh hoạt chung đặt ở vị trí mặt tiền, trở thành không gian quây quần và thư giãn lý tưởng cho cả gia đình. Ngay cạnh cầu thang là phòng ngủ số 3 thiết kế khép kín, sở hữu nhà vệ sinh riêng, đảm bảo sự tiện nghi và tính riêng tư tối đa cho người sử dụng.
Bên trái là phòng ngủ số 5 có lối mở ra ban công rộng, mang đến nguồn sáng tự nhiên dồi dào và không khí thoáng mát. Khu vực phía sau bố trí phòng ngủ số 4 cùng hai nhà vệ sinh chung đặt liền kề, giúp tối ưu việc sử dụng cho các thành viên. Cuối hành lang là phòng giặt tách biệt, trang bị cửa sổ thông gió, hỗ trợ hiệu quả cho quá trình giặt giũ và phơi phóng hằng ngày.







