Mẫu nhà phố 2 tầng 1 tum của gia đình anh Sử ở Lâm Đồng do Maxhome thiết kế mang đến cảm giác sang trọng ngay từ cái nhìn đầu tiên và nổi bật giữa khu dân cư. Trong bài viết này, chúng ta sẽ cùng khám phá kỹ hơn những điểm nhấn ấn tượng ở phần ngoại thất của công trình để thấy rõ lý do vì sao kiểu nhà này ngày càng được ưa chuộng.
Thông tin nhà phố 2 tầng 1 tum đẳng cấp
| Chủ đầu tư: Anh Nguyễn Đức Sử | Địa chỉ: B’Lao, Bảo Lộc, Lâm Đồng |
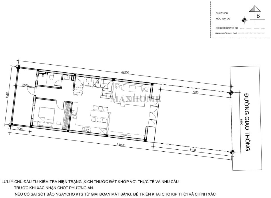
| Mặt tiền: 6m | Kích thước xây dựng: 6 x 14,8m |
| Số tầng: 2 tầng 1 tum | Loại hình: Nhà lô phố hiện đại |
| Tổng diện tích: 190m2 | |
Công năng:
| |
| Đơn vị thiết kế: CÔNG TY TNHH MAXHOME ARCHITECT & DESIGN | |
Công trình nhà phố cao tầng và hiện đại
Từ mặt tiền chính diện, mẫu nhà phố 2 tầng 1 tum gây thiện cảm nhờ bố cục hình khối mạnh mẽ nhưng vẫn giữ được sự tinh tế. Maxhome tận dụng những đường nét vuông vắn và dứt khoát để tạo sự hiện đại, sau đó kết hợp với những mảng giật cấp nhẹ nhằm tăng chiều sâu cho ngôi nhà. Màu sơn trắng chủ đạo giúp tổng thể trông sạch sẽ và sáng sủa hơn, trong khi các chi tiết ốp đá ở tầng 1 lại mang đến cảm giác chắc chắn và sang trọng. Sự tương phản vật liệu được xử lý rất khéo léo giúp mặt tiền nổi bật mà không bị rối mắt.

Phía trước của tầng 1 được ốp gạch giả đá màu tối vân mây trắng tạo nên điểm nhấn sang trọng và giúp khu vực cửa chính trở nên hút mắt hơn. Đây là cách Maxhome thường áp dụng cho những gia chủ yêu thích sự sang trọng nhưng vẫn muốn giữ nét bền bỉ theo thời gian. Ngoài ra, hệ cửa kính kết hợp khung nhôm tạo cảm giác thông thoáng và giúp lấy sáng tối ưu cho không gian bên trong. Tại các khu vực này sẽ hỗ trợ mở rộng tầm nhìn và mang lại cảm giác thoải mái khi bước vào nhà.

Lên đến tầng 2, công trình tiếp tục duy trì phong cách hiện đại với hệ lan can kính cường lực. Lan can trong suốt giúp mặt tiền nhẹ nhàng và thanh thoát hơn đồng thời tôn lên vẻ đẹp của các đường kẻ trang trí và mảng ốp giả gỗ ở trần hiên. Chính sự kết hợp giữa kính và gỗ giúp mặt tiền tầng 2 trông ấm áp và gần gũi hơn, đúng tinh thần mà Maxhome luôn hướng tới trong các mẫu nhà phố 2 tầng 1 tum do đơn vị thiết kế. Từ đường nét đến màu sắc đều được tính toán cẩn thận để phù hợp với khí hậu và phong cách sống của gia đình anh Sử.

Tại vị trí tầng tum, Maxhome thiết kế phần mái giật cấp kết hợp lam trang trí chạy ngang làm điểm nhấn rõ nét và giúp tăng tính thẩm mỹ cho tổng thể công trình. Không gian tum vừa có thể làm nơi thư giãn vừa tạo ra khoảng trống thoáng đãng giúp điều hòa ánh sáng và gió cho toàn bộ căn nhà. Đội ngũ thiết kế cũng bố trí hệ cây xanh bố trí xung quanh tum để góp phần tăng mảng xanh cho mặt tiền và giúp nhà phố 2 tầng 1 tum của anh Sử trở nên mềm mại, gần gũi thiên nhiên hơn.

Đội ngũ thiết kế Maxhome luôn tinh chỉnh từng chi tiết để phù hợp với nhu cầu và thói quen sinh hoạt của gia chủ nên từng bản vẽ đã được vẽ hoàn chỉnh theo từng nhu cầu gia đình. Đây cũng là lý do mà Maxhome được nhiều gia đình tin tưởng và đánh giá là một trong những đơn vị thiết kế kiến trúc hàng đầu Việt Nam.

Bố trí công năng tuyệt đỉnh

Lô đất nhà anh Sử được sử dụng 2/3 phần đất và vẫn còn dư một khoảng trống lớn phía trước để xe cộ hoặc trồng cây xanh. Nhờ khoảng trống này mà không gian sống nhà anh Sử sẽ hạn chế được tiếng ồn khi tiếp giáp trực tiếp với đường giao thông và đồng thời có thêm khoảng đệm trước khi bước vào nhà rất nhẹ nhàng, hợp lý.

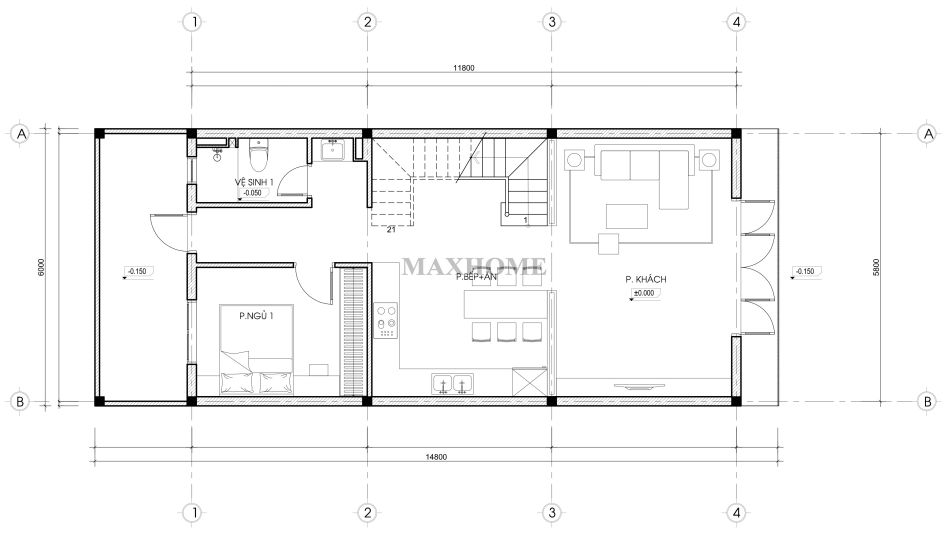
Tầng 1 được bố trí theo hướng mở để tạo cảm giác rộng và thoáng ngay khi bước vào nhà. Phòng khách nằm ở vị trí trung tâm để gia đình anh Sử đón tiếp bạn bè, kế tiếp là phòng bếp ăn được kết nối liền mạch để tối ưu diện tích và tạo sự thuận tiện khi di chuyển. Phía sau là 1 phòng ngủ và 1 một nhà vệ sinh chung đều được bố trí hợp lý để phục vụ tốt cho sinh hoạt toàn tầng.


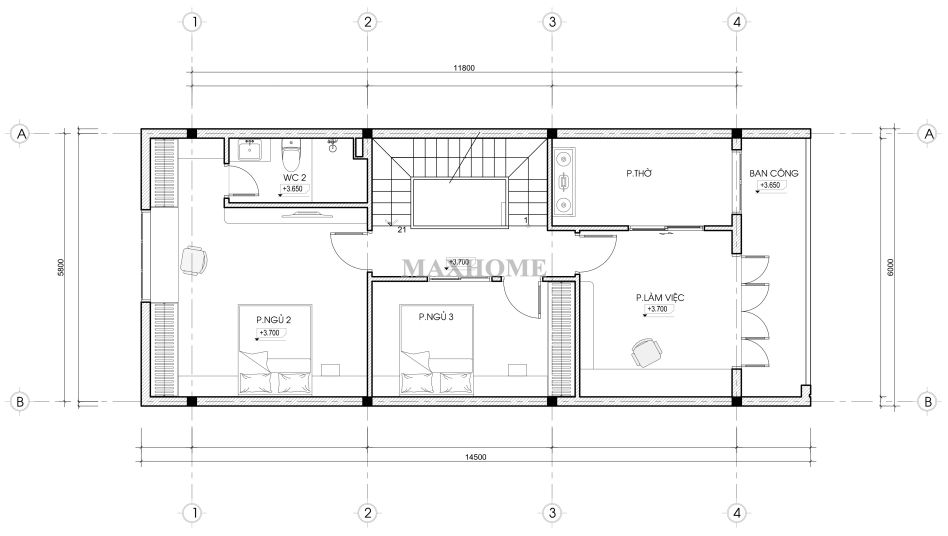
Tầng 2 bố trí riêng phòng thờ đặt ở vị trí trang trọng, yên tĩnh, hướng ra ban công rộng lớn phía trước mà vẫn đảm bảo sự trang nghiêm và thuận tiện cho gia đình thực hiện các nghi lễ. Kế bên là phòng làm việc dành cho những giờ tập trung cao độ hoặc học tập. Hai phòng ngủ được sắp xếp cạnh nhau mang đến sự thoải mái cho các thành viên. Riêng phòng ngủ 02 sở hữu riêng nhà vệ sinh khép kín bên trong, đây cũng được coi là phòng ngủ master vì sự tiện nghi đầy đủ trong căn phòng.


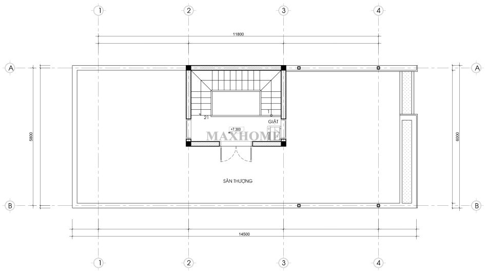
Tầng tum là nơi gia đình anh Sử tận hưởng khoảng không thoáng đãng nhất ngôi nhà phố 2 tầng 1 tum với sân thượng rộng và mở. Nhờ vị trí cao nhất, khu vực này đón gió tốt, có view rộng và được tận dụng làm nơi bố trí téc nước để cung cấp nước sinh hoạt cho cả gia đình.










