Sở hữu vẻ đẹp sang trọng và tinh tế, mẫu nhà 2 tầng mái Nhật tân cổ điển 4 phòng ngủ đang trở thành lựa chọn được rất nhiều gia chủ quan tâm trong thời gian gần đây. Không chỉ nổi bật bởi kiến trúc mềm mại, thanh thoát, mẫu nhà này còn chinh phục người xem nhờ công năng bố trí hợp lý và tính ứng dụng cao. Hiện nay, bộ bản vẽ thiết kế chi tiết của công trình đang được mở bán, giúp gia chủ dễ dàng triển khai thi công thực tế, tiết kiệm thời gian, chi phí và đảm bảo đúng tiêu chuẩn kỹ thuật.
Thông tin nhà 2 tầng mái Nhật tân cổ điển
| Chủ đầu tư: Anh Phí Văn Quang | Địa chỉ: Thanh Hà, Hải Phòng |
| Mặt tiền: 7,9m | Kích thước xây dựng: 7,9 x 12,2m |
| Số tầng: 2 tầng 1 tum | Loại hình: Nhà phố tân cổ điển |
| Tổng diện tích: 295m2 | |
Công năng:
| |
| Đơn vị thiết kế: CÔNG TY TNHH MAXHOME ARCHITECT & DESIGN | |
Ngoại thất nhà 2 tầng mái Nhật tân cổ điển 4 phòng ngủ
Những mẫu nhà 2 tầng mái Nhật phong cách tân cổ điển luôn được nhiều gia chủ yêu thích nhờ vẻ đẹp sang trọng, tinh tế và giàu tính thẩm mỹ. Mỗi chi tiết trong thiết kế đều cần thể hiện được gu thẩm mỹ cũng như phong cách sống riêng của từng gia đình, vì vậy việc lựa chọn một đơn vị thiết kế am hiểu sở thích và nhu cầu của khách hàng trở thành yếu tố vô cùng quan trọng. Một bản vẽ chuẩn chỉnh, được thực hiện bởi đội ngũ kiến trúc sư giàu kinh nghiệm, sẽ giúp công trình đạt được sự hài hòa giữa kiến trúc – công năng – phong thủy, đồng thời nâng tầm giá trị của ngôi nhà.

Ngôi nhà 2 tầng mái Nhật tân cổ điển sử dụng gam màu trắng làm tone chủ đạo, giúp tổng thể trở nên thanh lịch và sang trọng. Trên các mảng tường và hệ cột chính, kiến trúc sư khéo léo tạo điểm nhấn bằng những đường phào chỉ tinh tế, kết hợp cùng các vòm cong mềm mại đặc trưng của phong cách tân cổ điển. Tuy nhiên, toàn bộ chi tiết đã được tiết chế một cách hợp lý, giữ lại sự nhẹ nhàng và hiện đại, tránh cảm giác rườm rà. Nhờ đó, công trình vừa mang nét đẹp truyền thống tinh xảo, vừa phù hợp với xu hướng kiến trúc hiện nay.

Lan can ban công được làm từ sắt mỹ thuật sơn màu nan đồng, tạo cảm giác sang trọng và đồng bộ với phong cách tân cổ điển của ngôi nhà. Ở khu vực cửa sổ tầng 2, kiến trúc sư thiết kế các vòm cong mềm mại kết hợp với ban công hình bán nguyệt – những chi tiết đặc trưng thường thấy ở các mẫu nhà tân cổ điển. Sự kết hợp này không chỉ gia tăng giá trị thẩm mỹ mà còn giúp mặt tiền trở nên thanh thoát, quý phái và cuốn hút hơn từ mọi góc nhìn.


Ngoài cửa chính được làm từ chất liệu thép vân gỗ sang trọng, toàn bộ hệ cửa còn lại của ngôi nhà sử dụng khung nhôm Xingfa kết hợp kính cường lực cao cấp. Sự kết hợp này giúp không gian lấy sáng tối đa, tạo cảm giác thông thoáng và hiện đại. Đồng thời, cửa nhôm kính còn có ưu điểm cách âm, cách nhiệt tốt, độ bền cao và hạn chế cong vênh theo thời gian, mang đến trải nghiệm sử dụng tiện nghi và bền vững cho gia chủ.

Khám phá công năng nhà phố tân cổ điển sang trọng
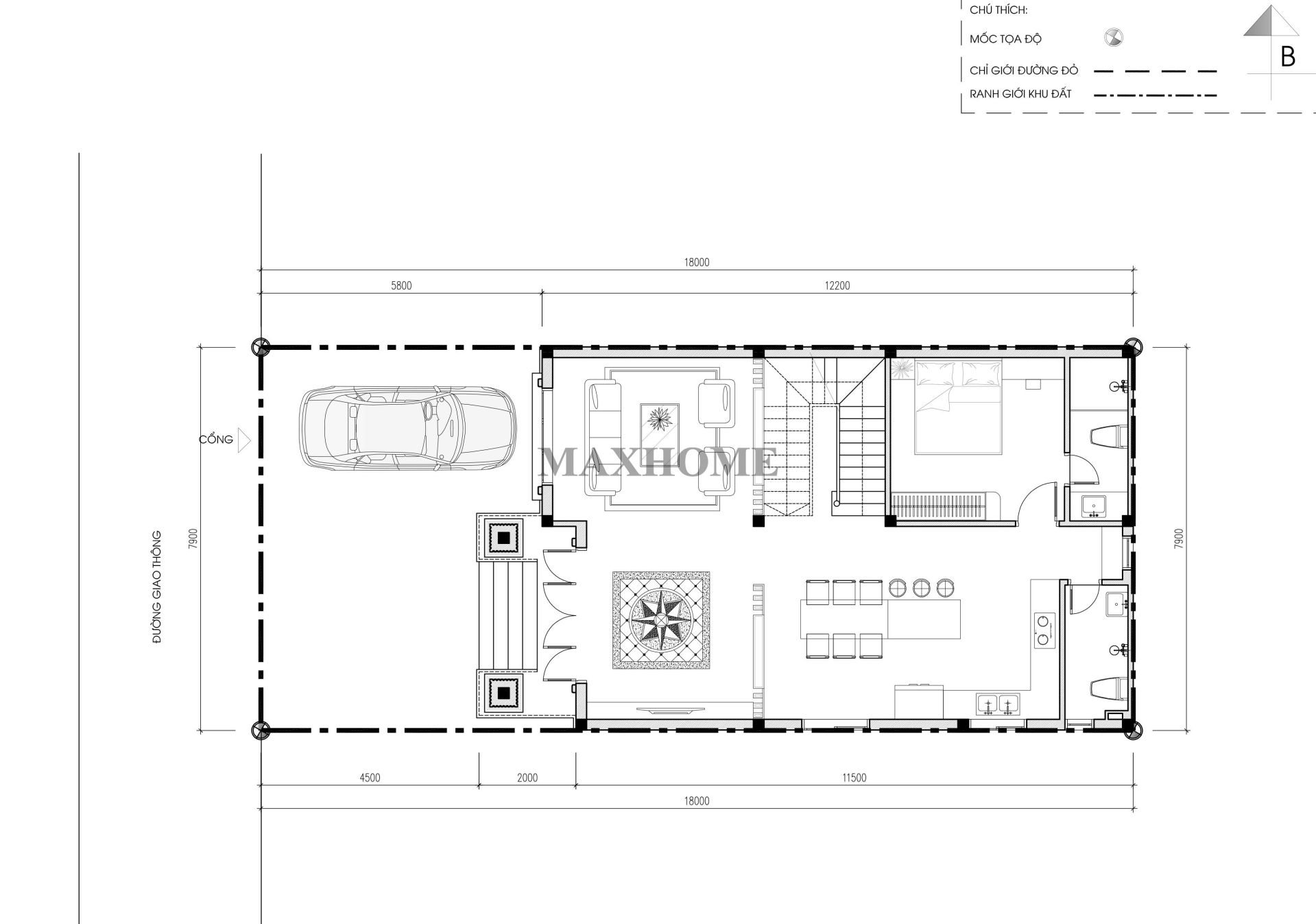
Dưới đây là hình ảnh mặt bằng định vị công trình, cho thấy mẫu nhà 2 tầng mái Nhật tân cổ điển sở hữu kích thước 7,9 x 12,2m, phù hợp với nhiều loại hình đất phổ biến hiện nay. Tổng diện tích sử dụng vào khoảng 196m², đủ để bố trí các không gian sinh hoạt tiện nghi cho gia đình từ 4–6 thành viên. Nhờ tỷ lệ kích thước hài hòa và mặt bằng khoa học, công trình đảm bảo tối ưu công năng, đồng thời giữ được vẻ đẹp sang trọng đặc trưng của phong cách tân cổ điển.

Từ sảnh chính bước vào là khu vực sảnh đệm thoáng đãng, tạo điểm chuyển tiếp nhẹ nhàng trước khi vào không gian sinh hoạt. Phòng khách được bố trí bên tay phải, rộng rãi và đón sáng tốt, là nơi gia đình tiếp khách và quây quần mỗi ngày.
Tiếp nối là khu vực bếp ăn với bộ tủ bếp hình chữ L gọn gàng, tối ưu không gian sử dụng và mang lại sự thuận tiện trong quá trình nấu nướng. Ở phía cuối nhà là một phòng ngủ có nhà vệ sinh khép kín, đảm bảo sự riêng tư tối đa cho người sử dụng. Bên cạnh khu bếp ăn còn được bố trí thêm một nhà vệ sinh chung, phục vụ nhu cầu sinh hoạt cho cả gia đình và khách đến chơi.

Tầng 2 được bố trí một phòng thờ trang nghiêm ở vị trí hợp phong thủy, đảm bảo sự yên tĩnh và tôn nghiêm cần có. Xung quanh là 3 phòng ngủ được sắp xếp khoa học, mang lại sự riêng tư và thoải mái cho từng thành viên trong gia đình. Ngoài ra, tầng 2 còn có một nhà vệ sinh chung kết hợp phòng tắm tiện nghi, đáp ứng nhu cầu sinh hoạt hằng ngày. Khu vực giặt và phơi được đặt ở cuối nhà, tách biệt với các không gian khác, giúp việc sinh hoạt trở nên thuận lợi và gọn gàng hơn.







